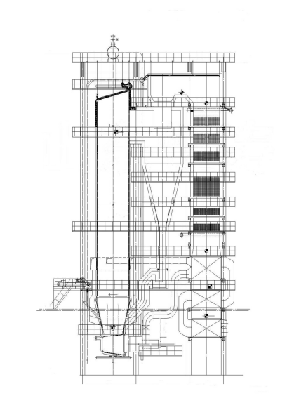
循環流化床燃燒是一種高效、節能、環保的燃燒技術。主要結構由爐膛區域、絕熱旋風分離器、自平衡回料閥和尾部豎井區域四部分組成。目前,循環流化床鍋爐已經很好的解決了熱學、力學、材料學等基礎問題,部件膨脹、磨損、超溫等工程問題,成為難燃固體燃料能源利用的先進技術。在清華大學流態重構理論基礎上,我司產品成為更適合基于爐內脫硫和低碳燃燒的節能環保型循環流化床鍋爐,其流態重構的理論方法是提高床質量,降低床存量,重新構建循環系統物料平衡狀態。
循環流化床燃燒是一種高效、節能、環保的燃燒技術。主要結構由爐膛區域、絕熱旋風分離器、自平衡回料閥和尾部豎井區域四部分組成。目前,循環流化床鍋爐已經很好的解決了熱學、力學、材料學等基礎問題,部件膨脹、磨損、超溫等工程問題,成為難燃固體燃料能源利用的先進技術。在清華大學流態重構理論基礎上,我司產品成為更適合基于爐內脫硫和低碳燃燒的節能環保型循環流化床鍋爐,其流態重構的理論方法是提高床質量,降低床存量,重新構建循環系統物料平衡狀態。
若你需要進一步了解該產品詳情,歡迎填寫以下表格,系統會實時提交您的信息至相應區域業務經理處,確保您的咨詢得到及時反饋。



歡迎填寫以下表格,完善您的產品需求、聯系電話、設備使用地等信息,我們將快速反饋您的購買咨詢。